+1(713) 357-5204
info@rpktspl.com
Home
About Us
Services
Structural Steel Detailing
Miscellaneous Steel Detailing
Connection Designs And Stamping
Estimation Support System
Project Management Portal
Complete Project
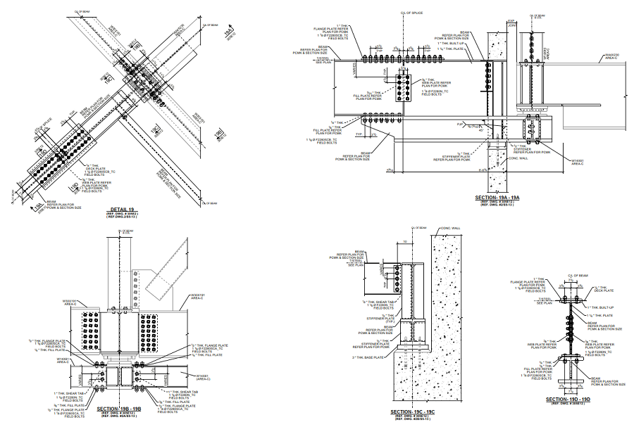
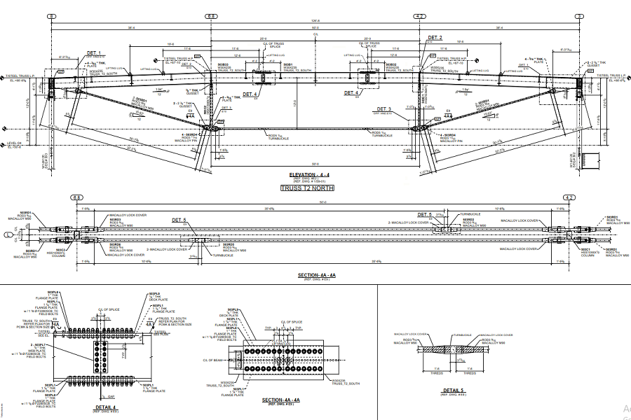
Drawing Sample
Detail Drawings Sample
Erection Drawings Sample
Career
Contact Us
Get a Quote
Get a quote
Cleveland Clinic Global Peak Performance Center
Project Details
Tonnage:
2665.12
Category:
Hospital
Location:
Cleveland, OH - 44113
Description
DOWNLOAD PDF