+1(713) 357-5204
info@rpktspl.com
Home
About Us
Services
Structural Steel Detailing
Miscellaneous Steel Detailing
Connection Designs And Stamping
Estimation Support System
Project Management Portal
Complete Project
Drawing Sample
Detail Drawings Sample
Erection Drawings Sample
Career
Contact Us
Get a Quote
Get a quote
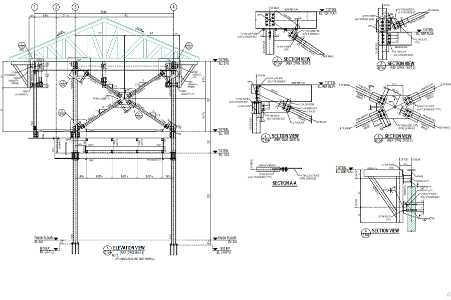
Animal Services Renovations
Project Details
Tonnage:
775
Category:
Commercial
Location:
Lake Charles, Louisiana 70615
Description
DOWNLOAD PDF